Vitoria TWR
ESPACIO AÉREO BAJO RESPONSABILIDAD DE LA DEPENDENCIA
Espacio aéreo de la dependencia
|
Denominación |
Límites laterales |
Límites verticales |
Clase de espacio aéreo |
|
CTA VITORIA |
|
FL095 ╾╾╾╾╾╾╾╾╾╾╾╾╾╾╾╾╾╾╾╾╾ Límite inferior sectores CTA |
D |
|
CTR VITORIA |
|
6000 ft AMSL ╾╾╾╾╾╾╾╾╾╾╾╾╾╾╾╾╾╾╾╾╾ SFC
|
D |
|
ATZ VITORIA |
|
3000 ft HGT ╾╾╾╾╾╾╾╾╾╾╾╾╾╾╾╾╾╾╾╾╾ SFC
O hasta la elevación del techo de nubes, lo que resulte más bajo. |
D (*) |
Instalaciones y operadores cuya actividad afecta a la prestación ATS en espacio aéreo de responsabilidad de LEVT
Como información, bajo el CTA VITORIA, al este del aeropuerto de Vitoria, se encuentra el aeródromo de San Torcuato (LESN). Los procedimientos de coordinación se establecen en la Carta Operacional ATS.
INFORMACIÓN SOBRE LA DEPENDENCIA
Frecuencias de la dependencia y posiciones
|
LOGIN |
INDICATIVO DE LLAMADA |
FRECUENCIA |
| LEVT_A_TWR |
Vitoria Tower |
118.450 |
| LEVT_GND |
Vitoria Ground |
121.805 |
Servicio ATIS
LEVT cuenta con servicio ATIS en 119.355 MHz. Su perfil de vATIS actualizado con cada AIRAC está disponible en AppData\Roaming\EuroScope\LEXX\Plugins\VATIS
- Vitoria especifica una aproximación en su ATIS.
- Ejemplo de ATIS en LEVT:
Actuación ante incidencia con vATIS: Vitoria TWR transmitirá a las aeronaves la información que corresponda vía radio. En base a RCA 4.5.5.2.1. se le proporcionará al tránsito la siguiente información:
- La pista que ha de utilizarse.
- La dirección y velocidad del viento en la superficie, incluyendo variaciones importante de las mismas.
- El reglaje QNH de altímetro, y, bien sea regularmente de conformidad con acuerdos locales o si la aeronave lo solicita, el reglaje QFE del altímetro.
- La temperatura del aire ambiente en la pista que ha de utilizarse, en el caso de aeronaves con motor de turbinas.
- La visibilidad representativa del sentido de despegue y ascenso inicial, si es inferior a 10 KM, o de ser aplicable, el valor del RVR correspondiente a la pista que ha de utilizarse.
- La hora exacta.
Sistemas de vigilancia ATS
Vitoria TWR podrá emplear los sistemas de vigilancia ATS para proporcionar al controlador por procedimientos, cuando corresponda mantener vigilancia sobre la marcha del tránsito aéreo:
- (i) información de posición mejorada sobre las aeronaves bajo control;
- (ii) información complementaria sobre otro tráfico; y
- (iii) información sobre cualquier desviación significativa de las aeronaves respecto a los términos de sus respectivas autorizaciones de control de tránsito aéreo (ATC), incluyendo las rutas y niveles autorizados, cuando sea apropiado.
Las estaciones radar que sirven a la dependencia son como establecido en el AIP-España ENR 1.6:
- BIARRITZ
- SÓLORZANO
- VALDESPINA
- MONTE DEL PERDÓN
- VITORIA
- BURGOS
- SAN SEBASTIÁN
Configuración en EuroScope
Para esta posición recomendamos utilizar LEVT_GND_GR.asr junto a LECM.asr y alternar mediante 'F7'.
Con el LECM.asr seleccionado, debes dirigirte al display settings dialog y seleccionar el TAG de SACTA TWR en el desplegable.
PROCEDIMIENTOS LOCALES DE LA DEPENDENCIA
La pista preferente en LEVT es la 04.
PROCEDIMIENTOS EN SALIDA
Todos los despegues subirán inicialmente a FL090.
En LEVT la separación para las salidas, deberá ser de 3 minutos, siempre que la performance de las salidas sean similares.
Las salidas via BLV y CEGAM de la pista 04 y 22 requerirán coordinación directa con LEBB APP. Debido a la inmediatez de la entrada de estas salidas al espacio aéreo responsabilidad de LEBB APP, estas salidas estarán sujetas automáticamente, será LEBB APP quien deberá dar la suelta.
- En LEVT no está permitida la maniobra de regreso por pista salvo situaciones de contingencia.
- En LEVT no están disponibles los despegues desde intersección.
PROCEDIMIENTOS EN LLEGADA
Como norma general, LEVT TWR será quien autorice a la aproximación a las aeronaves. Se autorizará, preferentemente, a la aproximación ILS-Z en la pista 04 y a la aproximación VOR en la 22.
Las instrucciones DCT en Vitoria TWR se ejecutarán conforme a la altitud mínima de área (AMA) que corresponda, o en su caso, a una altitud superior a la misma que sea adecuada para el procedimiento instrumental subsiguiente (como la MSA).
PROCEDIMIENTOS EN CONDICIONES DE BAJA VISIBILIDAD
La RWY 04 está equipada con un ILS CAT II/III y están autorizadas las aproximaciones CAT III.
- Generalidades:
- Se aplicarán los procedimientos reducida en superficie (LVP), cuando las condiciones meteorológicas mínimas sean las siguientes:
- Alcance visual en pista (RVR) inferior a 550 m, o
- Visibilidad general en el área de maniobras, por RVR fuera de servicio, inferior a 800 m.
- Alcance visual en pista (RVR) inferior a 550 m, o
- TWR, vía ATIS, informará a los pilotos de que se están aplicando los procedimientos de visibilidad reducida.
- Se cancelarán los procedimientos de visibilidad reducida en superficie (LVP) cuando los mínimos meteorológicos, según se han definido en el punto anterior, sean superiores a 800 m de RVR o 1000 m de visibilidad en caso de que los equipos medidores estén fuera de servicio.
- Despegues: Las RWY 04 y 22, son aptas para despegues de visibilidad reducida en las condiciones previstas.
- Se aplicarán los procedimientos reducida en superficie (LVP), cuando las condiciones meteorológicas mínimas sean las siguientes:
- Movimientos en tierra:
- Los pilotos procederán a verificar en todo momento la situación de la aeronave, comprobando que el rodaje se ejecuta en condiciones de completa seguridad.
- En el caso de que una aeronave que sale, tuviera que regresar a la plataforma, el piloto informará a TWR y esperará nuevas instrucciones de rodaje.
- Entradas a pista:
- La entrada a la RWY 04 sólo podrá realizarse por TWY T7 vía TWY T.
- La entrada a la RWY 22 sólo podrá realizarse por tWY T1 vía TWY T.
- Mientras se están aplicando los Procedimientos de Visibilidad Reducida, ATC autorizará el movimiento de una sola aeronave a la vez en el área de movimiento.
- La entrada a la RWY 04 sólo podrá realizarse por TWY T7 vía TWY T.
- Llegadas:
- Está prohibido utilizar TWY TA6.
- Con RVR inferior a 550 m (salvo autorización ATC):
- RWY 04 está en uso: está prohibido salir de RWY por TWY B1.
- RWY 22 en uso: está prohibido salir de RWY por TWY B1 y TWY C1.
- Con RVR inferior a 550 m (salvo autorización ATC):
- Está prohibido utilizar TWY TA6.
- Salidas:
- TWR informará a los pilotos de la aplicación del procedimiento de Visibilidad Reducida.
- Los pilotos, al solicitar autorización para la puesta en marcha, notificarán al ATC el puesto de estacionamiento en que se encuentran.
- Para los despegues en condiciones de visibilidad reducida se deberán utilizar los siguientes puntos de espera en pista:
- - RWY 04 - T7
- - RWY 22 - T1
- - RWY 04 - T7
- TWR informará a los pilotos de la aplicación del procedimiento de Visibilidad Reducida.
- Los pilotos procederán a verificar en todo momento la situación de la aeronave, comprobando que el rodaje se ejecuta en condiciones de completa seguridad.
Procedimientos de rodaje
Servicio de dirección en la plataforma
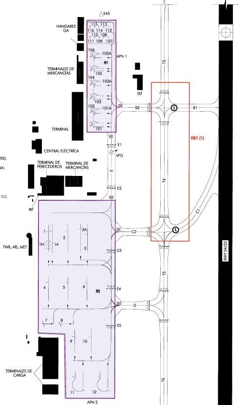
Detalle de los límites de plataforma (línea morada).
En plataforma no se presta servicio de control, sin embargo, LEVT gestionará con la puesta en marcha y el rodaje.
Rodaje
Estacionamiento de aeronaves y salida del puesto de estacionamiento:
ATC informa a la tripulación de la ruta de rodaje y controla el rodaje de la aeronave hasta la puerta de plataforma.
Procedimientos de operación para aeronaves de letra clave D menores a 38.05m (B757-300) en Plataforma 1
- Durante la operación de una aeronave de letra de clave D en Plataforma 1, no se permitirá el rodaje de ninguna otra aeronave en la Plataforma 1.
- Se han definido los puestos de estacionamiento autónomos 101A, 103A y 105A en Rampa 1 para las aeronaves de letra de clave D.
Procedimientos de operación para aeronaves de letra clave E
Procedimientos de operación para aeronaves de letra clave F
LEVT puede admitir las siguientes aeronaves de clave F: A380-800, B747-800, AN-124 y AN-225.
- Durante la operación de una aeronave de letra de clave F, no se permitirá el rodaje de ninguna otra aeronave en todo el área de movimiento salvo en Plataforma 1.
- Se ha definido el puesto de estacionamiento autónomo 2A en Rampa 2 para las aeronaves de letra de clave F.
PROCEDIMIENTOS PARA TRÁFICO VFR
LEVT cuenta con 2 circuitos para tránsito VFR por cada pista:
El acceso al CTR se organiza mediante cuatro puntos VFR:
- W (Morillas) – 1000 ft AGL
- S (Peñacerrada) – 1000 ft AGL
- N (Amezaga) – 1000 ft AGL
- E (Salvatierra) – 1000 ft AGL
SALIDAS
El piloto informará a Vitoria TWR del punto de salida a utilizar y notificará cuando abandone la CTR, manteniendo escucha permanente mientras permanezca dentro de la CTR.
Operación de tráfico VFR NOCTURNO
El aeropuerto de Vitoria permite la operación de vuelos VFR-N.
OPERACIÓN DE HELICÓPTEROS
Este procedimiento es de aplicación a todos los helicópteros que operan en el aeropuerto.
Todos los helicópteros, realizarán las aproximaciones, aterrizajes y despegues de la misma manera que las aeronaves de ala fija, salvo por las siguientes excepciones:
- Se permite a un helicóptero librar la RWY 04 por la TWY C1.
Se definen una FATO coincidente con la RWY y una TLOF coincidente con la FATO. Para rodaje aéreo/patines, se define una TLOF en el puesto de estacionamiento asignado para los helicópteros (1H).
TRANSFERENCIAS ENTRE POSICIONES ADYACENTES Y LEVT
| TRANSFERENCIAS EN SALIDA | |||
|
Hacia |
De |
A |
Autorizados nivel |
|
BLV, CEGAM 1) |
LEVT TWR |
LEBB APP |
FL090 |
|
DEMÁS SALIDAS |
LEVT TWR |
LECM BDP |
FL090 |
|
TRANSFERENCIAS EN LLEGADA |
|||
|
Desde |
De |
A |
Autorizados nivel |
|
CEGAM |
LEBB APP |
LEVT TWR |
FL100 (RWY04) FL070 (RWY22) |
|
DEMÁS LLEGADAS |
LECM BDP |
LEVT TWR |
FL100 |
- Salidas via BLV y CEGAM estarán sujetas a autorización por parte de LEBB APP.
Vuelos VFR
Los vuelos bajo reglas visuales volando en espacio aéreo controlado, serán transferidos a la dependencia que corresponda con la suficiente antelación como para que puedan recibir la autorización de acceso al CTA.
Log de versiones
(ACCSP54) 1558357 - Redacción inicial. (06/09/2024)
Si has encontrado información errónea en esta página o hay algo que crees que podrías mejorar, comunícalo por email a operaciones.







